Продукциялар
Майга чөмүлгөн электромагниттик чыңалуу трансформатору
  • Майга чөмүлгөн электромагниттик чыңалуу трансформаторуМайга чөмүлгөн электромагниттик чыңалуу трансформатору
  • Майга чөмүлгөн электромагниттик чыңалуу трансформаторуМайга чөмүлгөн электромагниттик чыңалуу трансформатору

Майга чөмүлгөн электромагниттик чыңалуу трансформатору

Model:JDX-110、220
Anqiang Power мунайга чөмүлгөн электромагниттик чыңалуу трансформаторлорунун Кытай жеткирүүчүсү. Бул чыңалуу трансформатору чыңалууну жана энергияны өлчөөдө жана релелик коргоодо колдонуу үчүн 50Гц же 60Гц номиналдык жыштыгы жана 66КВ-220КВ номиналдык чыңалуудагы электр тутумдары үчүн ылайыктуу, тышкы, бир фазалуу, бир баскычтуу түрү болуп саналат.

Anqiang өз алдынча иштелип чыккан Мунайга чөмүлгөн электромагниттик чыңалуу трансформатору, JDX сериясынын модели 66KV, 110KV жана 220KV чыңалуу деңгээлине ылайыктуу.  Трансформатордун үстүнкү бөлүгүндө өзүнчө өлчөөчү жана коргоочу орамдары бар үч экинчи орама бар.  Ал үстү жагында дат баспас болоттон жасалган металл кеңейтүүчү резервуар менен жабдылган, анын курамында мунай деңгээлинин өзгөрүшүнө оңой мониторинг жүргүзүү үчүн май деңгээлинин көз айнеги бар. Мунайга чөмүлгөн электромагниттик чыңалуу трансформаторунун түбүндө майдын үлгүсүн алуу, төгүү жана кайра толтурууну ыңгайлуу кылуучу көп функциялуу мунай төгүүчү клапан орнотулган. Буюмдун негизи жана башка ачык болот бөлүктөрүндө порошок каптоо жана ысык цинктелген коррозияга каршы процесстер колдонулат, бул эстетиканы жана коррозияга мыкты туруктуулукту камсыз кылат. Бул чыңалуу трансформатору бир баскычтуу изоляциялык түзүлүшкө ээ, ал эми өткөргүчтөр бирдиктүү электр талаасын камсыз кылуу үчүн бир нече сыйымдуулук экрандарынан турат.

Чыныгы продукт сүрөттөр

Oil Immersed Electromagnetic Voltage Transformer

Техникалык параметрлер

Номиналдуу баштапкы чыңалуу (кВ)

66/69

110/115

132/138

150

220/230

Жабдуулардын максималдуу чыңалуусу (кВ)

72.5

123/126

145

325

460

Номиналдуу жыштык (Гц)

50/60

Номиналдуу кубаттуулук жыштыгы чыдамкай чыңалуу (кВ)

140/160

230

275

750

1050

Чагылгандын номиналдык импульсуна туруштук берүүчү чыңалуу (кВ)

325/350

550

650

1500

2100

Арктын жаркыраган аралыгы

780

1050

1300

 

 

Механикалык жүк (N)

1250

1250

1250

1250

1250

Экинчи терминалдык белгилер

1а-1н

2a-2n

да-дн

Тактык деңгээли

0.2

0.5

3P

Номиналдуу чыгаруу (VA)

100

250

300

150

150

300

150

300

Жылуулук чектөө чыгаруу (VA)

2000

Номиналдуу чыңалуу коэффициенти

1,2/Үзгүлтүксүз;1,9/8с(66КВ)
1,2/Үзгүлтүксүз;1,5/30сек (110-230КВ)

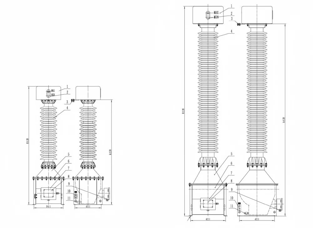
Продукциянын көрүнүшү диаграммасы

Oil Immersed Electromagnetic Voltage Transformer

Сан

аты

1

Экспандер

2

Майдын деңгээлин текшерүү терезеси

3

Жалгыз терминал

4

Фарфор жең

5

Көтөрүлгөн отургуч

6

Танк

7

Кошумча туташтыргыч куту

8

Фамилия тактасы

9

Экинчи чыгуучу тешик

10

Жерге туташтыруучу плита

11

Мунай төгүүчү клапан

Hot Tags: Майлы электромагниттик чыңалуу трансформатору, майга батылган чыңалуу трансформатору
Сурамжылоо жөнөтүү
Байланыш маалымат
  • Дарек

    Цзиньлу индустриалдык зонасы, Бейбайсян шаары, Юэцин шаары, Вэнчжоу шаары, Чжэцзян провинциясы, Кытай

  • Тел

Автоматтык өчүргүч, жүктөө которгучу, ажыратуучу которгуч же прейскурант боюнча суроо үчүн бизге электрондук почтаңызды калтырыңыз, биз 24 сааттын ичинде байланышабыз.
X
Биз кукилерди сизге жакшыраак серептөө тажрыйбасын сунуштоо, сайт трафигин талдоо жана мазмунду жекелештирүү үчүн колдонобуз. Бул сайтты колдонуу менен сиз кукилерди колдонууга макул болосуз. Купуялык саясаты
Четке кагуу Кабыл алуу