Продукциялар
Тышкы жогорку чыңалуу жүктөө которгучу
  • Тышкы жогорку чыңалуу жүктөө которгучуТышкы жогорку чыңалуу жүктөө которгучу
  • Тышкы жогорку чыңалуу жүктөө которгучуТышкы жогорку чыңалуу жүктөө которгучу
  • Тышкы жогорку чыңалуу жүктөө которгучуТышкы жогорку чыңалуу жүктөө которгучу

Тышкы жогорку чыңалуу жүктөө которгучу

Model:FZW32-12(40.5)
Сырттагы жогорку чыңалуудагы жүк өчүргүч - Anqiang Power тарабынан өз алдынча иштелип чыккан жогорку чыңалуудагы электр продуктунун жаңы муунун. Катуу типтеги тестирлөөдөн жана узак мөөнөттүү сыноодон өткөндөн кийин, бардык техникалык көрсөткүчтөр стандарттарга жооп берди. Бул 12КВ номиналдык чыңалуу, 630А номиналдык ток жана үч фазалуу 50Гц AC менен электр менен жабдуу тармактары үчүн ылайыктуу.

Anqiang Power компаниясынын сырткы жогорку чыңалуудагы жүк өчүргүчтөрү изоляциялоочу өчүргүчтөн, вакуумдук үзгүчтөн жана иштөө механизминен турган жүк өчүргүчтүн жаңы түрү болуп саналат. Вакуумдук жааны өчүрүү принцибинен пайдаланып, ал күчтүү жааны өчүрүү жөндөмүн, ишенимдүү аткарууну, узак кызмат мөөнөтүн, компакттуу өлчөмүн, жарылуу коркунучун жана булганууну сунуштайт. Тиешелүү вакуумдук жүк өчүргүч менен колдонулганда, аны электр энергиясын өндүрүү, металлургия, тоо-кен жана химиялык инженерия сыяктуу тармактарда электр энергиясын берүү жана бөлүштүрүү системаларына колдонсо болот.

Чыныгы продукт сүрөттөр

Outdoor High Voltage Load Switch

Продукт моделинин диаграммасы

Outdoor High Voltage Load Switch

Техникалык параметрлер

Долбоордун аталышы

Параметрдин мааниси

Номиналдуу чыңалуу

12КВ

Номиналдуу жыштык

50Hz

Номиналдуу ток

630A

Номиналдуу жигердүү жүк үзүүчү ток

630A

Номиналдуу жабык цикл үзүлүүчү ток

630A

5% номиналдык активдүү жүк үзүү ток

31.5A

Номиналдуу кабелдик заряддоо жана үзүлүүчү ток

10A

Трансформатордун жүктөмсүз иштөө жөндөмдүүлүгү

1600КВА

Конденсатор банкынын номиналдуу үзүлүүчү ток

100A

1 мүнөттүк кубаттуулук жыштыгы чыңалууга туруштук берет

42/48КВ

Чагылгандын импульсу чыңалууга туруштук берет

75/85КВ

Номиналдуу кыска убакытка туруштук берүү агымы (жылуулук туруктуулугу)

20KA

Номиналдуу кыска туташуунун узактыгы

4S

Номиналдуу чокуга туруштук берүү (динамикалык туруктуулук)

50KA

Номиналдуу кыска туташууларды жасоочу ток

50KA

Механикалык жашоо

10000次

Вакуумдук жааны өчүрүүчү контакттардын уруксат берилген эскирүү калыңдыгы

1мм

Кол менен иштөө моменти

≤200Н.м

Жүктөмдү өчүрүү үчүн вакуумдук үзгүчтү монтаждоо жана жөндөө

Байланыш боштугу

5±1мм

Орточо которуу ылдамдыгы

1,1±0,2м/с

Үч фазалуу өчүрүү бир эле убакта болбойт.

<5ms

Үч фазалуу которуу синхрондоштурулган эмес.

<2ms

Заряддалган денелердин ортосундагы аралык жана алардын жерге салыштырмалуу алыстыгы.

>200мм

Негизги схеманын каршылыгы

≤150μΩ


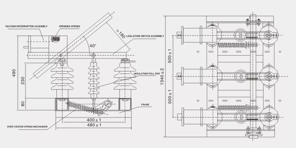
Продукциянын өлчөмдөрүнүн диаграммасы

Outdoor High Voltage Load Switch


Hot Tags: Тышкы жогорку чыңалуудагы жүктөө которгучу, жогорку чыңалуудагы ажыраткыч, тышкы жүк өчүргүч, HV жүк изолятору менен камсыздоочу
Сурамжылоо жөнөтүү
Байланыш маалымат
  • Дарек

    Цзиньлу индустриалдык зонасы, Бейбайсян шаары, Юэцин шаары, Вэнчжоу шаары, Чжэцзян провинциясы, Кытай

  • Тел

Автоматтык өчүргүч, жүктөө которгучу, ажыратуучу которгуч же прейскурант боюнча суроо үчүн бизге электрондук почтаңызды калтырыңыз, биз 24 сааттын ичинде байланышабыз.
X
Биз кукилерди сизге жакшыраак серептөө тажрыйбасын сунуштоо, сайт трафигин талдоо жана мазмунду жекелештирүү үчүн колдонобуз. Бул сайтты колдонуу менен сиз кукилерди колдонууга макул болосуз. Купуялык саясаты
Четке кагуу Кабыл алуу